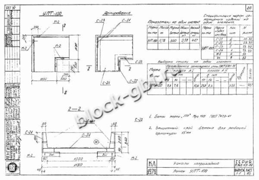
Лотки железобетонные применяются в дорожном, жилом и инженерном строительстве для прокладки трубопроводов различного назначения, газопроводов, теплотрасс, электрокабелей. Железобетонные лотки предохраняют инженерные сети от преждевременного разрушения.
Изделия могут быть нескольких марок и разных размеров, изготовленных по разным технологическим процессам. В зависимости от тех условий, в которых лоток железобетонный будет эксплуатироваться, будет зависеть технология изготовления и способ монтажа. Лотки железобетонные бывают водоотводными, коллекторными, кабельными, дорожными, лотки для теплотрасс и быстротока.
| 
											ГОСТ/Серия
																					 | Серия 3.903 КЛ-14, вып. 1-1 | 
| 
											Длина, мм
																					 | 1680 | 
| 
											Ширина, мм
																					 | 1680 | 
| 
											Высота, мм
																					 | 340 | 
| 
											Масса, тонн
																					 | 0.78 | 
| 
											Объем бетона, куб.м
																					 | 0.31 | 
| 
											Класс бетона
																					 | В22,5 | 
| 
											Геометрический объем, м.куб
																					 | 0.959616 | 
| 
											Сталь, кг
																					 | 48.7 | 
| 
											Закладная 1
																					 | Сетка С21 | 
| 
											Закладная 2
																					 | С22 | 
| 
											Закладная 3
																					 | С23 | 
| 
											Закладная 4
																					 | С24 | 
Как купить
Процесс покупки железобетонных изделий у нас прост и удобен. Следуйте этим шагам:
- Выбор продукции: Ознакомьтесь с нашим ассортиментом и выберите необходимые железобетонные изделия.
- Консультация: Свяжитесь с нашим менеджером для получения консультации по выбору продукции и уточнения всех деталей. Вы можете позвонить нам или написать на электронную почту.
- Оформление заказа: После согласования всех деталей оформите заказ. Менеджер поможет вам заполнить все необходимые документы.
- Согласование доставки: После оформления заказа наш менеджер свяжется с вами для согласования условий и сроков доставки.
- Оплата: Выберите удобный способ оплаты. Мы предлагаем несколько вариантов, включая безналичный расчет.
- Получение товара: После выполнения всех условий заказа, вы получите железобетонные изделия в назначенное время и по согласованному адресу. При получении подпишите акт приема-передачи.
Если у вас возникли вопросы на любом этапе покупки, не стесняйтесь обращаться к нашим менеджерам!
Оплата
Мы принимаем только безналичные платежи и работаем исключительно с юридическими лицами. Пожалуйста, ознакомьтесь с условиями оплаты ниже:
- Способ оплаты: Все расчеты производятся безналичным путем. Мы не принимаем наличные.
- Счет на оплату: После оформления заказа вам будет выставлен счет, который необходимо оплатить в срок, указанный в документе.
- Реквизиты: Все необходимые банковские реквизиты будут предоставлены в счете. Убедитесь, что все данные указаны правильно для успешного перевода.
- Подтверждение оплаты: После осуществления платежа отправьте нам подтверждение, чтобы мы могли оперативно обработать ваш заказ.
- Получение документов: После полной оплаты вы получите все необходимые документы, включая акт выполненных работ, товарные накладные и сертификаты на продукцию.
Мы работаем с НДС и предоставляем все необходимые сертификаты и документы. Все гарантии будут прописаны в договоре, что обеспечивает прозрачность и надежность сотрудничества.
Если у вас есть вопросы по поводу процесса оплаты, не стесняйтесь обращаться к нашим менеджерам за помощью!
Наша оперативность — ваше удобство. Мы гарантируем своевременную доставку железобетонных изделий, что является ключевым фактором для успешной реализации ваших строительных проектов. Доставка осуществляется прямо к вашему объекту с учетом всех стандартов качества.
    Основные условия доставки:
    • Выбор тарифа: Вы можете выбрать способ расчета стоимости доставки — почасовой или по зонам.
    • Согласование: Менеджер свяжется с вами для уточнения деталей после оформления заказа.
    • Время на погрузку: Комплектация товара занимает от 1 до 3 дней в зависимости от объема.
    • Акт приема-передачи: Продукция передается по акту приема-передачи.
    Тарифы на доставку:
    Цены варьируются в зависимости от расстояния и региона. Все тарифы включают НДС. При неблагоприятных погодных условиях возможны небольшие изменения в стоимости.
    География доставки:
    Мы работаем по всей территории РФ и имеем 12 офисов и производств, чтобы обеспечить удобные условия для доставки.
Для точного расчета стоимости доставки обращайтесь к нашим менеджерам!


 
						 
						 
						 
						 
						 
						 
						 
						 
							 
							 
							 
							 
							 
							 
							