Описание блока междушпального лотка МШЛ-0.7
Блок междушпального лотка (МШЛ-0.7) Альбом №984 применяется для устройства инженерных коммуникаций, включая водоотводные системы, дренажи, кабельные каналы и другие конструкции. Изделие изготавливается из высокопрочного бетона с армированием стальной арматурой, что обеспечивает его прочность, устойчивость к нагрузкам и долговечность.
Применение блока МШЛ-0.7
Блок МШЛ-0.7 используется как элемент для строительства водоотводных систем, дренажей, кабельных каналов и других инженерных коммуникаций. Он служит важной частью системы, обеспечивающей надежную защиту от деформаций, герметичность конструкции и долговечность. Для монтажа могут применяться дополнительные элементы: раствор, закладные детали и другие комплектующие.
Типы междушпальных лотков
Междушпальные лотки железобетонные подразделяются на несколько типов в зависимости от размеров и назначения:
- МШЛ: междушпальный лоток стандартный;
- МШЛД: междушпальный лоток доборный;
- МШЛК: междушпальный лоток крышки;
- МШЛП: междушпальный лоток прямоугольный.
Размеры зависят от типа: длина 1500–3000 мм, ширина 335–400 мм, высота 800–1000 мм.
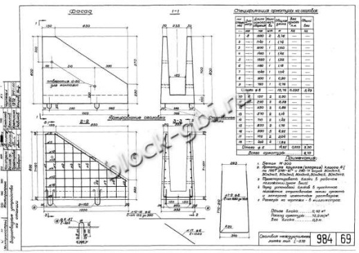
Основные параметры, размеры и характеристики
- Длина, мм: 1500
- Ширина, мм: 392/335
- Высота, мм: 800
- Масса, тонн: 0,6
- Объем бетона, м³: 0,22
- Геометрический объем, м³: 0,4704
- Расход стали, кг: 22,22
Дополнительные характеристики
- Класс бетона: B22,5 (марка М300)
- Марка по морозостойкости: F200–F300
- Марка по водонепроницаемости: W6–W8
- Технология изготовления: вибропрессование или формование с использованием высокопрочного бетона.
Закладные детали
- Сетка С1: армирующий элемент для усиления конструкции;
- Сетка С2: дополнительный армирующий элемент;
- Сетка С3: элемент для повышения прочности;
- Отдельные стержни: элементы для усиления определенных участков конструкции.
Нормы загрузки
- Норма загрузки в автотранспорт 20 т, шт: 33
Документы
- Нормативный документ: Альбом №984
Расшифровка маркировки МШЛ-0.7
Маркировка "МШЛ-0.7" содержит следующую информацию:
- МШЛ – междушпальный лоток;
- 0.7 – расчетная нагрузка на лоток в тоннах (700 кгс).
Условия транспортировки и хранения
Блоки МШЛ-0.7 перевозятся автомобильным или железнодорожным транспортом с использованием специальных захватных устройств (строп). Хранение осуществляется на ровных площадках с твердым покрытием. Блоки устанавливаются горизонтально в штабель высотой не более 2,5 м. Для предотвращения повреждений между изделиями устанавливаются деревянные прокладки.
Контроль качества блока МШЛ-0.7
Каждый блок МШЛ-0.7 проходит многоступенчатый контроль качества в соответствии с Альбом №984. Проверяются:
- прочность бетона (не ниже класса B22,5);
- соответствие геометрических размеров проектным данным;
- качество армирования (наличие арматурного каркаса, толщина защитного слоя бетона);
- морозостойкость и водонепроницаемость бетона;
- точность расположения закладных элементов;
- отсутствие трещин, сколов и других дефектов.
Заключение
Блок междушпального лотка МШЛ-0.7 – надежный и долговечный элемент для устройства инженерных коммуникаций: водоотводных систем, дренажей, кабельных каналов и других конструкций. Благодаря строгому соблюдению требований Альбом №984 и использованию качественных материалов, он обеспечивает прочность, устойчивость и долговечность конструкций. Для заказа качественных железобетонных блоков обращайтесь к производителям с сертификатами соответствия и опытом работы в сфере ЖБИ.
Смотрите также:
| Варианты написания товара | 
|---|
| Блок междушпального лотка МШЛ-0.7 | 
| МШЛ-0.7 блок междушпального лотка | 
| Блок междушпального лотка МШЛ0.7 | 
| МШЛ0.7 блок междушпального лотка | 
| МШЛ-0.7 | 
| МШЛ0.7 | 
| Блок междушпального лотка МШЛ-0.7 Альбом №984 | 
| МШЛ-0.7 Альбом №984 | 
| МШЛ0.7 Альбом №984 | 
| 
											ГОСТ/Серия
																					 | Альбом №984 | 
| 
											Длина, мм
																					 | 1500 | 
| 
											Ширина, мм
																					 | 392/335 | 
| 
											Высота, мм
																					 | 800 | 
| 
											Масса, тонн
																					 | 0.6 | 
| 
											Объем бетона, куб.м
																					 | 0.22 | 
| 
											Класс бетона
																					 | В22,5 | 
| 
											Геометрический объем, м.куб
																					 | 0.4704 | 
| 
											Сталь, кг
																					 | 22.22 | 
| 
											Закладная 1
																					 | Сетка С1 | 
| 
											Закладная 2
																					 | Сетка С2 | 
| 
											Закладная 3
																					 | Сетка С3 | 
| 
											Закладная 4
																					 | Отдельные стержни | 
Как купить
Процесс покупки железобетонных изделий у нас прост и удобен. Следуйте этим шагам:
- Выбор продукции: Ознакомьтесь с нашим ассортиментом и выберите необходимые железобетонные изделия.
- Консультация: Свяжитесь с нашим менеджером для получения консультации по выбору продукции и уточнения всех деталей. Вы можете позвонить нам или написать на электронную почту.
- Оформление заказа: После согласования всех деталей оформите заказ. Менеджер поможет вам заполнить все необходимые документы.
- Согласование доставки: После оформления заказа наш менеджер свяжется с вами для согласования условий и сроков доставки.
- Оплата: Выберите удобный способ оплаты. Мы предлагаем несколько вариантов, включая безналичный расчет.
- Получение товара: После выполнения всех условий заказа, вы получите железобетонные изделия в назначенное время и по согласованному адресу. При получении подпишите акт приема-передачи.
Если у вас возникли вопросы на любом этапе покупки, не стесняйтесь обращаться к нашим менеджерам!
Оплата
Мы принимаем только безналичные платежи и работаем исключительно с юридическими лицами. Пожалуйста, ознакомьтесь с условиями оплаты ниже:
- Способ оплаты: Все расчеты производятся безналичным путем. Мы не принимаем наличные.
- Счет на оплату: После оформления заказа вам будет выставлен счет, который необходимо оплатить в срок, указанный в документе.
- Реквизиты: Все необходимые банковские реквизиты будут предоставлены в счете. Убедитесь, что все данные указаны правильно для успешного перевода.
- Подтверждение оплаты: После осуществления платежа отправьте нам подтверждение, чтобы мы могли оперативно обработать ваш заказ.
- Получение документов: После полной оплаты вы получите все необходимые документы, включая акт выполненных работ, товарные накладные и сертификаты на продукцию.
Мы работаем с НДС и предоставляем все необходимые сертификаты и документы. Все гарантии будут прописаны в договоре, что обеспечивает прозрачность и надежность сотрудничества.
Если у вас есть вопросы по поводу процесса оплаты, не стесняйтесь обращаться к нашим менеджерам за помощью!
Наша оперативность — ваше удобство. Мы гарантируем своевременную доставку железобетонных изделий, что является ключевым фактором для успешной реализации ваших строительных проектов. Доставка осуществляется прямо к вашему объекту с учетом всех стандартов качества.
    Основные условия доставки:
    • Выбор тарифа: Вы можете выбрать способ расчета стоимости доставки — почасовой или по зонам.
    • Согласование: Менеджер свяжется с вами для уточнения деталей после оформления заказа.
    • Время на погрузку: Комплектация товара занимает от 1 до 3 дней в зависимости от объема.
    • Акт приема-передачи: Продукция передается по акту приема-передачи.
    Тарифы на доставку:
    Цены варьируются в зависимости от расстояния и региона. Все тарифы включают НДС. При неблагоприятных погодных условиях возможны небольшие изменения в стоимости.
    География доставки:
    Мы работаем по всей территории РФ и имеем 12 офисов и производств, чтобы обеспечить удобные условия для доставки.
Для точного расчета стоимости доставки обращайтесь к нашим менеджерам!


 
						 
						 
						 
						 
						 
						 
						 
						 
						 
						 
						 
						 
							 
							 
							 
							 
							 
							 
							 
							 
							 
							 
							