Тоннели сборные и входящие в их состав элементы, плиты днища тоннелей ПДТ 2-4 – это железобетонные конструкции, которые применяются для прокладки различных коммуникаций: систем водопровода, канализации, теплопроводов, технологических трубопроводов, электрических кабелей, электрошин, совмещенных сетей различного назначения, транспортеров и т.д. Железобетонные тоннели защищают трубопроводы от механических повреждений и освобождают их от действия массы грунта и временных нагрузок, вызванных проезжающим над тоннелем транспортом.
Тоннели и плиты днища тоннелей ПДТ 2-4 железобетонные используются при прокладке подземных, полуподземных и надземных проходных трубопроводных систем коммуникаций. Проходные тоннели по сравнению с непроходными коммуникационными каналами (которые также называют необслуживаемыми) позволяют человеку свободно перемещаться внутри для обслуживания в любой точке. Трубопроводы в сборных тоннелях располагаются по стенам тоннеля на кронштейнах с учетом свободного перемещения труб при термическом расширении.
Основное направление, в котором используются тоннели сборные и плиты днища тоннелей ПДТ 2-4 – это инженерное строительство, однако универсальность конструкции позволяет использовать эти ЖБИ также в промышленном, энергетическом, гражданском и жилищном строительстве. В тоннелях возможно совмещение прокладок коммуникаций различного назначения: технологические трубопроводы, системы водоотведения или водоспуска, электрические кабели, шины, теплотрассы и многие другие коммуникации. Жб тоннели используются для прокладки коммуникаций как внутри, так и вне зданий.
Железобетонные плиты днища тоннелей ПДТ 2-4 спроектированы для прокладки в непросадочных грунтах, сухих и при наличии грунтовых вод. Заглубление верха перекрытия тоннелей принято не менее 0,7 м и не более 2х метров ниже поверхности земли. Уровень грунтовых вод принят ниже верха перекрытия тоннелей не менее чем на 1 м. При невозможности размещения тоннеля выше уровня грунтовых вод предусматривается искусственное понижение грунтовых вод с применением попутного дренажа и обмазка наружных поверхностей изделий битумной изоляцией. Конструкции тоннелей применяются в районах с сейсмичностью не более 6 баллов.
Тоннели сборные и плиты днища тоннелей ПДТ 2-4 изготавливаются в соответствии с сериями ИС-01-05 «Унифицированные сборные железобетонные тоннели» и 3.006.1-8 «Каналы и тоннели сборные железобетонные из лотковых элементов» из тяжелого бетона. Класс бетона по прочности на сжатие принимается не ниже В15. Класс бетона по морозостойкости принимается не менее F200 – для эксплуатации тоннелей в районах, характеризующихся частыми перепадами температур (в пределах от -50° до +50°). Для придания необходимого и достаточного уровня гидроизоляции сборных единиц класс бетона по водонепроницаемости назначается от W4 и выше. Для дополнительной защиты изделий от воздействия воды и содержащихся в ней активных химических соединений в бетон добавляются водоотталкивающие присадки.
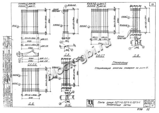
Железобетонные тоннели из сборных элементов – плиты днища тоннелей ПДТ 2-4 – армируются плоскими сварными сетками и каркасами, которые изготавливаются из горячекатаной стали периодического профиля классов А-I, А-II, А-III и холоднотянутой проволоки класса В-I. Для монтажных петель используется сталь класса А-I. Все арматурные изделия и закладные детали для крепления трубопроводов, кабелей и других узлов коммуникаций предварительно обрабатываются антикоррозийным покрытием.
Тоннели сборные и плиты днища тоннелей ПДТ 2-4 железобетонные – это конструкции высокой ответственности, от качества изготовления которых зависит надежность и стабильность работы коммуникационных сетей. Поэтому стандартами предусмотрен ряд технических требований к изготовлению и внешнему виду изделий. К примеру, на поверхности изделий допускаются лишь небольшие раковины, диаметром до 10 мм, не более одной на каждый погонный метр.
Тоннели сборные и плиты днища тоннелей ПДТ 2-4 должны быть изготовлены в точности с геометрическими размерами, указанными в чертежах серий. Допустимые отклонения от размеров должны быть не более ±10 мм по длине изделий, ±5 мм – по высоте и ширине поперечного сечения. Категорически не допускается искривление плоскостей более чем на 5 мм на всю длину элементов.
Тоннели и плиты днища тоннелей ПДТ 2-4 складируются и транспортируются в штабелях высотой не более 2 метров с обеспечением устойчивости и соблюдением требований техники безопасности. Каждое изделие укладывается на две деревянные прокладки толщиной не менее 30 мм. Прокладки должны устанавливаться на тех же расстояниях от торцов элементов, что и монтажные петли.
В
компании ГК «БЛОК» можно не только заказать тоннели сборные и плиты днища тоннелей ПДТ 2-4 железобетонные, но и проконсультироваться с нашими специалистами, подобрать требуемые конструкции железобетонных изделий. В нашем отделе продаж можно заранее узнать и уточнить цену железобетонных тоннелей и рассчитать общую стоимость заказа. Купить железобетонные сборные тоннели и проконсультироваться по общим вопросам покупки и доставки Вы можете, позвонив по телефонам компании ГК «БЛОК»: Санкт-Петербург: (812) 309-22-09, Москва: (495) 646-38-32, Краснодар: (861) 279-36-00. Режим работы компании: Пн-Пт с 9-00 до 18-00. Компания ГК «БЛОК» осуществляет доставку сборных железобетонных тоннелей из сборных элементов по всей России прямо до объекта заказчика или на строительную площадку, если позволяет инфраструктура.
|
ГОСТ/Серия
|
Серия ИС 01-05 |
|
Длина, мм
|
2970 |
|
Ширина, мм
|
2420 |
|
Высота, мм
|
380 |
|
Масса, тонн
|
3.5 |
|
Объем бетона, куб.м
|
1.39 |
|
Класс бетона
|
В15 |
|
Геометрический объем, м.куб
|
ИС-01-05, вып. 7 |
Как купить
Процесс покупки железобетонных изделий у нас прост и удобен. Следуйте этим шагам:
- Выбор продукции: Ознакомьтесь с нашим ассортиментом и выберите необходимые железобетонные изделия.
- Консультация: Свяжитесь с нашим менеджером для получения консультации по выбору продукции и уточнения всех деталей. Вы можете позвонить нам или написать на электронную почту.
- Оформление заказа: После согласования всех деталей оформите заказ. Менеджер поможет вам заполнить все необходимые документы.
- Согласование доставки: После оформления заказа наш менеджер свяжется с вами для согласования условий и сроков доставки.
- Оплата: Выберите удобный способ оплаты. Мы предлагаем несколько вариантов, включая безналичный расчет.
- Получение товара: После выполнения всех условий заказа, вы получите железобетонные изделия в назначенное время и по согласованному адресу. При получении подпишите акт приема-передачи.
Если у вас возникли вопросы на любом этапе покупки, не стесняйтесь обращаться к нашим менеджерам!
Оплата
Мы принимаем только безналичные платежи и работаем исключительно с юридическими лицами. Пожалуйста, ознакомьтесь с условиями оплаты ниже:
- Способ оплаты: Все расчеты производятся безналичным путем. Мы не принимаем наличные.
- Счет на оплату: После оформления заказа вам будет выставлен счет, который необходимо оплатить в срок, указанный в документе.
- Реквизиты: Все необходимые банковские реквизиты будут предоставлены в счете. Убедитесь, что все данные указаны правильно для успешного перевода.
- Подтверждение оплаты: После осуществления платежа отправьте нам подтверждение, чтобы мы могли оперативно обработать ваш заказ.
- Получение документов: После полной оплаты вы получите все необходимые документы, включая акт выполненных работ, товарные накладные и сертификаты на продукцию.
Мы работаем с НДС и предоставляем все необходимые сертификаты и документы. Все гарантии будут прописаны в договоре, что обеспечивает прозрачность и надежность сотрудничества.
Если у вас есть вопросы по поводу процесса оплаты, не стесняйтесь обращаться к нашим менеджерам за помощью!
Наша оперативность — ваше удобство. Мы гарантируем своевременную доставку железобетонных изделий, что является ключевым фактором для успешной реализации ваших строительных проектов. Доставка осуществляется прямо к вашему объекту с учетом всех стандартов качества.
Основные условия доставки:
• Выбор тарифа: Вы можете выбрать способ расчета стоимости доставки — почасовой или по зонам.
• Согласование: Менеджер свяжется с вами для уточнения деталей после оформления заказа.
• Время на погрузку: Комплектация товара занимает от 1 до 3 дней в зависимости от объема.
• Акт приема-передачи: Продукция передается по акту приема-передачи.
Тарифы на доставку:
Цены варьируются в зависимости от расстояния и региона. Все тарифы включают НДС. При неблагоприятных погодных условиях возможны небольшие изменения в стоимости.
География доставки:
Мы работаем по всей территории РФ и имеем 12 офисов и производств, чтобы обеспечить удобные условия для доставки.
Для точного расчета стоимости доставки обращайтесь к нашим менеджерам!

