Сегодня в строительстве используется огромное количество разнообразных лестниц для самых разнообразных нужд. Лестницы бывают деревянные, металлические, железобетонные, кирпичные, стеклянные, из естественных камней и минералов и т.д., в зависимости от их функционального применения. Высокопрочные лестницы железобетонные отличаются от остальных тем, что имеют больший запас прочности, поэтому их используют в строительстве крупных и важных объектов. Это могут быть промышленные комплексы всех видов, школы и детские сады, аэропорты и железнодорожные вокзалы, кинотеатры и рестораны, здания высших учебных заведений, обычные лестницы для дома железобетонные до 3-х этажей, многоэтажные каркасные, кирпичные, каменные дома и прочие здания.
Помимо огромного запаса прочности железобетонные лестницы обладают и другими важными преимуществами перед лестницами из других строительных материалов. Они огнестойки, обладают высокой стойкостью к износу, не подвергаются разрушению под воздействием механических усилий, а также резких перепадов температур и химических реакций. Лестницы из железобетона не подвержены старению, не гниют. Благодаря таким внушительным физическим характеристикам железобетонные лестницы способны прослужить максимально долго, не требуя при этом особо ухода. Стоит сказать и о том, то железобетонные лестницы экономичны в изготовлении: стоимость бетонного сырья дешевле, а его производство отличает простота и высокая технологичность.
Железобетонные лестницы, как и любые другие лестницы, представляют собой ряд ступеней, которые предназначаются для вертикального перемещения – подъема и спуска по ним людей. Будучи, по большей части, несущей конструкцией, железобетонные лестницы устанавливаются в специальном проеме, который называется лестничная клетка. Внутри лестничной клетки располагаются все сборные элементы лестниц, которые в сумме образовывают высокопрочную и надежную конструкцию.
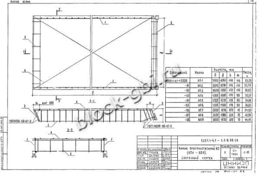
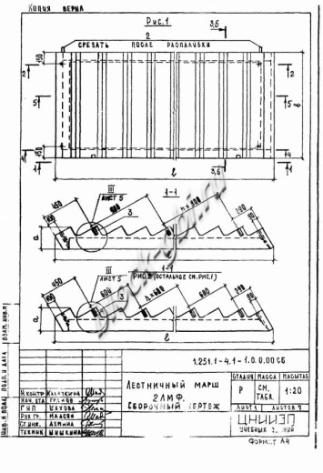
Элементы лестниц – лестничные марши 2ЛМФ 42.15.18-5-1 железобетонные – это конструктивные соединительные элементы, входящие в состав сборных железобетонных лестниц. По сравнению с монолитными лестницами, монтаж которых является достаточно трудоемким процессом, монтаж сборных единиц происходит значительно быстрее, т.к. требует меньшего количества техники, а, следовательно, дешевле. К тому же следует учесть, что какая-нибудь поломка или брак повлекут за собой полную замену монолитной конструкции лестницы. А сборные железобетонные лестницы при наличии поврежденного элемента не требуют замены всей конструкции, достаточно заменить только этот элемент.
Элементы лестниц – лестничные марши 2ЛМФ 42.15.18-5-1 железобетонные – изготавливаются из тяжелого бетона плотностью 2500 кг/м3 по ГОСТ 26633 или из легкого бетона плотной структуры средней плотностью от 1600 до 2000 кг/м3 по ГОСТ 25820. Класс бетона изделий по прочности на сжатие выбирается в зависимости от назначения лестницы: В25 – наружные лестницы зданий и сооружений, а также лестницы из тяжелого бетона или плотного силикатного бетона, предназначенные для внутренних лестниц жилых зданий высотой до 5 этажей; В15 – лестницы для остальных зданий и сооружений.
Классы бетона по морозостойкости и водонепроницаемости, из которого изготавливаются элементы лестниц лестничные марши 2ЛМФ 42.15.18-5-1 железобетонные, назначаются в зависимости от условий эксплуатации и района строительства и принимаются, соответственно, от F100 и W2 –для внутренних лестниц жилых зданий, от F200 и W4 – для остальных лестниц, в том числе наружных.
Сборные лестницы и их элементы – лестничные марши 2ЛМФ 42.15.18-5-1 железобетонные, при необходимости, изготавливают в двух вариантах исполнения: правом и левом – для лестниц с подъемом против часовой стрелки и по часовой стрелке, соответственно. Элементы лестниц лестничные марши 2ЛМФ 42.15.18-5-1 изготавливают с отделкой верхних лицевых поверхностей следующих видов: с гладкой поверхностью из тяжелого бетона на обычном цементе; со шлифованной мозаичной поверхностью декоративного конструкционного слоя из бетона на обычном, белом или цветном цементах и на мраморном щебне (лестничные площадки и накладные проступи); с облицовкой керамической плиткой (только площадки).
Сборные лестницы и их отдельные элементы – лестничные марши 2ЛМФ 42.15.18-5-1 железобетонные – армируются пространственными каркасами, состоящими из плоских и гнутых каркасов. В качестве рабочей арматуры нижних каркасов принимается: стержневая горячекатаная арматурная сталь классов А-I и А-III по ГОСТ 5781 и А-IIIв, изготавливаемая из арматурной стали класса А-III, упрочненной вытяжкой с контролем величины напряжения и п
редельного удлинения; термомеханически упрочненная стержневая арматурная сталь классов Ат-IIIС и Ат-IVС по ГОСТ 10884. В качестве арматуры верхних каркасов принимается стальная проволока периодического профиля классом Вр-I по ГОСТ 6727 и класса Врп-I по ТУ 14-4-1322-85. Закладные детали элементов лестниц изготавливаются из углеродистой стали класса С38/23.
Лестницы железобетонные и их отдельные элементы – лестничные марши 2ЛМФ 42.15.18-5-1 железобетонные, являются несущими конструкциями, от их эксплуатационных свойств зависит надежность, устойчивость и долговечность объектов строительства, поэтому к качеству изготовления этих изделий предъявляются достаточно серьезные требования.
Элементы лестниц, лестничные марши 2ЛМФ 42.15.18-5-1 железобетонные, должны удовлетворять установленным при проектировании требованиям по прочности, жесткости и трещиностойкости. Нормируемая отпускная прочность бетона элементов лестниц должна составлять (в процентах от класса или марки бетона по прочности на сжатие): 70 – при поставке элементов лестниц в теплый период года; 80-85 – при поставке в холодный период года. Истираемость мозаичного декоративного конструкционного слоя бетона элементов лестниц на щебне из мрамора не должна превышать 1,8 г/см2. В площадках с каналами для скрытой электропроводки диаметр канала должен быть не более 25 мм, а расстояние от поверхности канала до арматуры площадок – не менее 10 мм.
Элементы лестниц, лестничные марши 2ЛМФ 42.15.18-5-1 железобетонные, должны быть изготовлены в полном соответствии с документацией и чертежами. Значения действительных отклонений геометрических параметров от указанных в проекте не должны превышать ±5-6 мм по длине изделий, ±3-5 мм – по ширине, ±2-3 мм – по толщине. Отклонения размеров ребер, полок, выступов, отверстий и каналов не должны превышать ±5 мм. Отклонения по прямолинейности профиля лицевой поверхности должны не превышать предела в ±2-4 мм. В бетоне элементов лестниц трещины не допускаются, за исключением усадочных и других поверхностных технологических трещин на нижней и торцовых поверхностях элементов. Ширина трещин, при этом, не должна превышать 0,2 мм.
Элементы лестниц, лестничные марши 2ЛМФ 42.15.18-5-1 железобетонные, следует транспортировать и хранить в штабелях в горизонтальном положении. Высота штабеля не должна превышать 2,5 м. Допускается хранить лестничные марши 2ЛМФ 42.15.18-5-1 в положении «на ребро» при надежном их закреплении в этом положении. Подкладки и прокладки между рядами изделий должны быть толщиной не менее 30 мм и установлены в местах расположения строповочных отверстий или монтажных петель.
В компании ГК “БЛОК” можно заказать элементы лестниц – лестничные марши 2ЛМФ 42.15.18-5-1 железобетонные, а также проконсультироваться с нашими специалистами и подобрать требуемые конструкции железобетонных изделий. В нашем отделе продаж можно заранее узнать и уточнить цену элементов лестниц (лестничные марши 2ЛМФ 42.15.18-5-1 железобетонные) и рассчитать общую стоимость заказа. Купить элементы лестниц – лестничные марши 2ЛМФ 42.15.18-5-1 железобетонные – и проконсультироваться по общим вопросам покупки и доставки Вы можете, позвонив по телефонам компании ГК БЛОК: Санкт-Петербург: (812) 309-22-09, Москва: (495) 646-38-32, Краснодар: (861) 279-36-00. Режим работы компании: Пн.-Сб. с 9-00 до 18-00. Компания ГК БЛОК осуществляет доставку элементов лестниц (лестничные марши 2ЛМФ 42.15.18-5-1 железобетонные) по всей России прямо до объекта заказчика или на строительную площадку, если позволяет инфраструктура.
|
ГОСТ/Серия
|
Серия 1.151.1-7 |
|
Длина, мм
|
4249 |
|
Ширина, мм
|
1500 |
|
Высота, мм
|
295 |
|
Масса, тонн
|
1.66 |
|
Объем бетона, куб.м
|
0.665 |
|
Класс бетона
|
В25 |
|
Геометрический объем, м.куб
|
1.251.1-4, вып. 1 |
Как купить
Процесс покупки железобетонных изделий у нас прост и удобен. Следуйте этим шагам:
- Выбор продукции: Ознакомьтесь с нашим ассортиментом и выберите необходимые железобетонные изделия.
- Консультация: Свяжитесь с нашим менеджером для получения консультации по выбору продукции и уточнения всех деталей. Вы можете позвонить нам или написать на электронную почту.
- Оформление заказа: После согласования всех деталей оформите заказ. Менеджер поможет вам заполнить все необходимые документы.
- Согласование доставки: После оформления заказа наш менеджер свяжется с вами для согласования условий и сроков доставки.
- Оплата: Выберите удобный способ оплаты. Мы предлагаем несколько вариантов, включая безналичный расчет.
- Получение товара: После выполнения всех условий заказа, вы получите железобетонные изделия в назначенное время и по согласованному адресу. При получении подпишите акт приема-передачи.
Если у вас возникли вопросы на любом этапе покупки, не стесняйтесь обращаться к нашим менеджерам!
Оплата
Мы принимаем только безналичные платежи и работаем исключительно с юридическими лицами. Пожалуйста, ознакомьтесь с условиями оплаты ниже:
- Способ оплаты: Все расчеты производятся безналичным путем. Мы не принимаем наличные.
- Счет на оплату: После оформления заказа вам будет выставлен счет, который необходимо оплатить в срок, указанный в документе.
- Реквизиты: Все необходимые банковские реквизиты будут предоставлены в счете. Убедитесь, что все данные указаны правильно для успешного перевода.
- Подтверждение оплаты: После осуществления платежа отправьте нам подтверждение, чтобы мы могли оперативно обработать ваш заказ.
- Получение документов: После полной оплаты вы получите все необходимые документы, включая акт выполненных работ, товарные накладные и сертификаты на продукцию.
Мы работаем с НДС и предоставляем все необходимые сертификаты и документы. Все гарантии будут прописаны в договоре, что обеспечивает прозрачность и надежность сотрудничества.
Если у вас есть вопросы по поводу процесса оплаты, не стесняйтесь обращаться к нашим менеджерам за помощью!
Наша оперативность — ваше удобство. Мы гарантируем своевременную доставку железобетонных изделий, что является ключевым фактором для успешной реализации ваших строительных проектов. Доставка осуществляется прямо к вашему объекту с учетом всех стандартов качества.
Основные условия доставки:
• Выбор тарифа: Вы можете выбрать способ расчета стоимости доставки — почасовой или по зонам.
• Согласование: Менеджер свяжется с вами для уточнения деталей после оформления заказа.
• Время на погрузку: Комплектация товара занимает от 1 до 3 дней в зависимости от объема.
• Акт приема-передачи: Продукция передается по акту приема-передачи.
Тарифы на доставку:
Цены варьируются в зависимости от расстояния и региона. Все тарифы включают НДС. При неблагоприятных погодных условиях возможны небольшие изменения в стоимости.
География доставки:
Мы работаем по всей территории РФ и имеем 12 офисов и производств, чтобы обеспечить удобные условия для доставки.
Для точного расчета стоимости доставки обращайтесь к нашим менеджерам!

